E-mail: ocs33@yahoo.com | Call: +603-8024 2233

CURRENT PROJECTS

Teluk Gadong Besar (Phase IV)



Overview

TELUK GADONG BESAR (Phase IV) is sited within a proposed mixed commercial/ residential development scheme situated in a locality generally known as Teluk Gadong Besar and is sited at Jalan Bawal, Klang, Selangor.

Easily accessible via Jalan Mohd Yamin before turning right onto Jalan Bawal which leads to the subject site.

This Phase IV is comprising of 6 units of 2-storey terrace house and is held under freehold land. The site is surrounded by the duly completed 2 & 2½-Storey terrace houses, semi detached houses and bungalows.

The nearby housing development schemes within the vicinity include Taman Sri Gadong, Taman Sri Pelabuhan, Taman Gembira, etc.

Situated close to McDonald's drive through outlet, D'haven Condominium, Harbour Place Shopping Centre, Crystal Crown Hotel and Pantai Hospital Klang. The Teluk Gadong KTM station is also sited in a short distance to the project site.


2-Storey Terrace House


Property Details

Project Name Teluk Gadong Besar (Phase IV)
City Klang
Property Type 2-storey Terrace House
Tenure Freehold
Land Area 20' x 70'
Build-up Area 2,077 s.f.
Selling Price From RM780,000.00 - RM1,200,000.00
No. of Bedrooms 4
No. of Bathrooms 4
Family Hall 2
Total Units 6

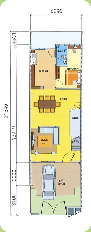
FLOOR PLAN


Ground Floor

First Floor


LOCATION MAP



Click on the map to view larger





OUR LOCATION

No.33, Jalan USJ 9/5P, Subang Business Centre,
47610 Subang Jaya, Selangor Darul Ehsan, Malaysia.
Tel: +603-8024 2233    Fax: +603-8024 1388
E-mail: ocs33@yahoo.com

2013-2024 All Rights Reserved | OCS Group Sdn Bhd (882701-K)